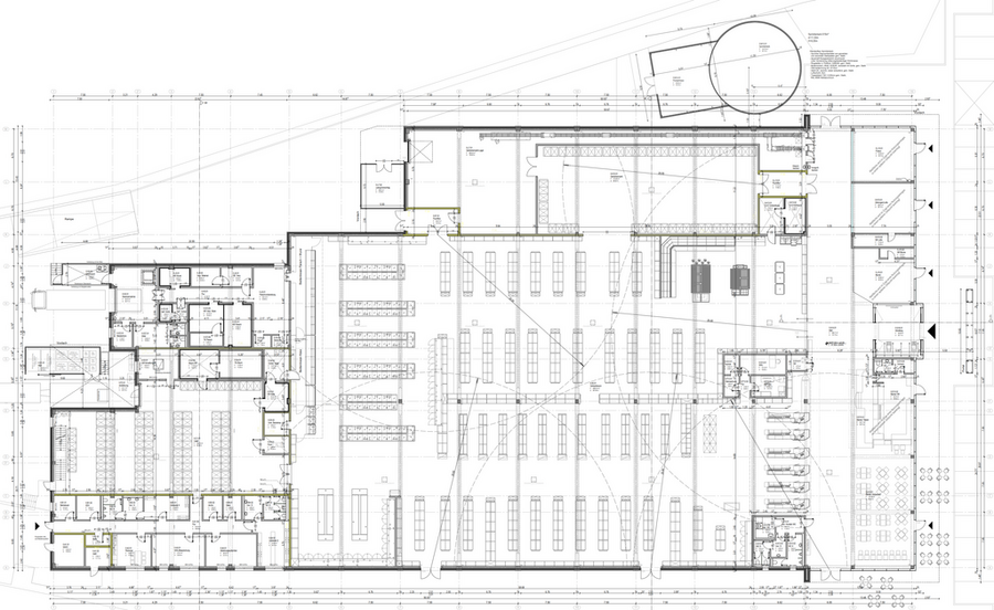
famila, Diepholz
Baumaßnahme: Neubau eines famila-Warenhauses in Diepholz
Auftraggeber: Famila Handelsmarkt Kiel GmbH & Co. KG, Kiel
Architekt: AX5 architekten PartG mbB, Kiel
Unsere Leistung: Technische Gebäudeausrüstung
Technische Daten:
Grundstücksfläche ca. 19.750 m²
überbaute Fläche ca. 15.600 m²
170 Parkplätze
