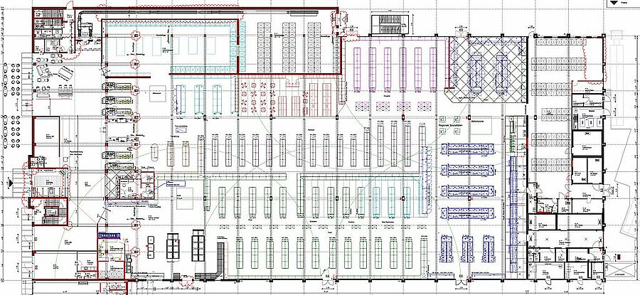
famila, Mellendorf
Baumaßnahme: Umbau und Erweiterung des famila-Warenhauses, Neubau eines Fachmarktzentrums, Mellendorf/Wedemark
Auftraggeber: Bela Grundstücks GmbH & Co. KG, Kiel
Unsere Leistung: Generalplanung
Technische Daten:
Grundstücksfläche ca. 28.800 m²
überbaute Fläche ca. 10.500 m²
325 Parkplätze, davon 60 überdacht
Besonderheiten:
Abschnittsweises Bauen und Inbetriebnehmen,
Sanierung im Bestand während des Verkaufs
