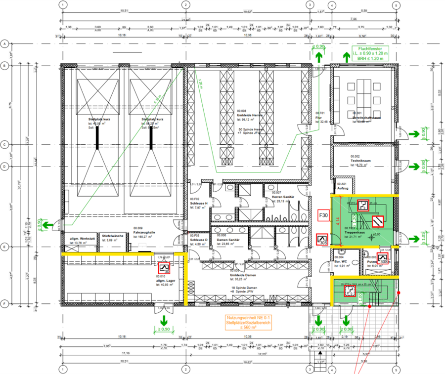
Feuerwehrgerätehaus Wolfenbüttel (Halchter)
Baumaßnahme: Neubau eines Feuerwehrgerätehauses in Wolfenbüttel (Halchter)
Auftraggeber: Stadt Wolfenbüttel
Architekt: struhkarchitekten, Braunschweig
Unsere Leistung: Brandschutzplanung
Technische Daten:
Nutzfläche ca. 850 m²
