IGS, Wolfenbüttel
Baumaßnahme: Umbau zur Errichtung einer Schul-Mensa mit brandschutztechnischer Sanierung
Auftraggeber: Stadt Wolfenbüttel
Unsere Leistung: Generalplanung
Technische Daten:
186 Plätze,
Bruttogrundfläche ca. 800 m²

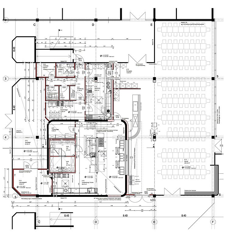
Baumaßnahme: Umbau zur Errichtung einer Schul-Mensa mit brandschutztechnischer Sanierung
Auftraggeber: Stadt Wolfenbüttel
Unsere Leistung: Generalplanung
Technische Daten:
186 Plätze,
Bruttogrundfläche ca. 800 m²