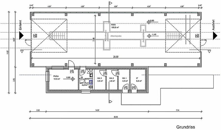
Niedersachsen Kaserne, Lohheide
Baumaßnahme: Neubau Bremsenprüfstand für LKW
Auftraggeber: Staatliches Baumanagement Lüneburger Heide, Munster
Unsere Leistung: Generalplanung
Technische Daten:
Bruttogrundfläche ca. 270 m²

Baumaßnahme: Neubau Bremsenprüfstand für LKW
Auftraggeber: Staatliches Baumanagement Lüneburger Heide, Munster
Unsere Leistung: Generalplanung
Technische Daten:
Bruttogrundfläche ca. 270 m²